
Ubicazione
Bissone si affaccia direttamente sul lago di Lugano e si trova all’estremità sud del ponte-diga di Melide. In automobile è raggiungibile sia tramite la strada cantonale Mendrisio - Lugano che con l’autostrada A2 uscendo direttamente a Bissone per chi proviene da sud, a Melide per chi viene da nord.
La via Campione collega Bissone all’enclave di Campione d’Italia. L’edificio si trova a circa 900 mt. dal ponte diga di Melide ed a circa 500 mt. dall’arco di Campione d’Italia.

Ulteriori informazioni su Bissone: www.Bissone.ch
Descrizione
La palazzina consta di 6 appartamenti signorili suddivisi su 3 piani. La facciata anteriore con i balconi, i soggiorni e le cucine rivolte verso il lago, è orientata ad Ovest offrendo sole fino al tramonto. Il lato nord guarda in direzione golfo di Lugano, mentre quello a sud verso Melide e Bissone.
Pian terreno
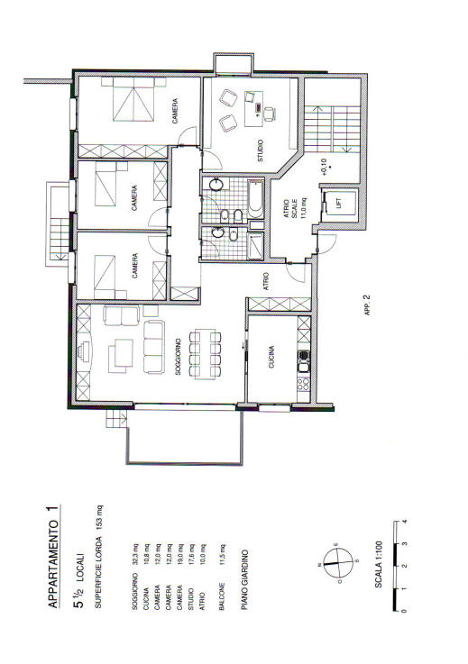
Vi sono 2 appartamenti (app. 1 e app. 2) di 5 ½ locali. Per migliore privacy, gli appartamenti sono sollevati dal piano terra ma hanno accesso al giardino direttamente dal balcone e tramite pochi gradini. L'appartamento a sud (N.r 2) ha un giardino privato.
Primo piano
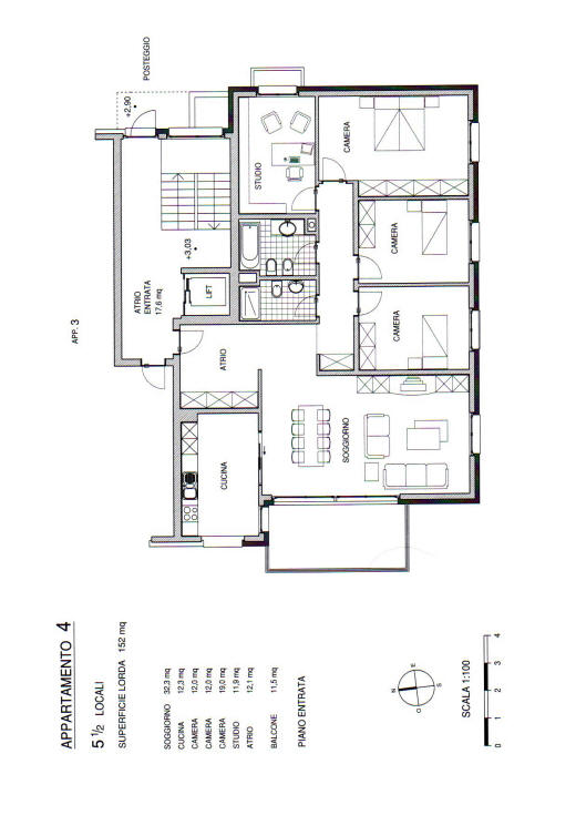
Vi sono 2 appartamenti (app. 3 e app. 4) di 5 ½ locali accessibili comodamente dal piano posteggi.
Ultimo piano
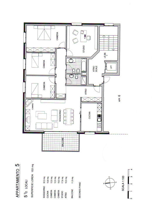
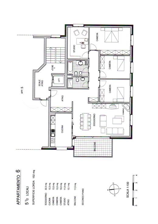
I due appartamenti all’ultimo piano (app. 5 e app. 6) sono anch’essi di 5 ½ locali ed hanno un camino in soggiorno.
Piano cantine
Ogni appartamento ha una cantina individuale.
Lavanderia con macchina da lavare ed asciugatrice.
Un locale deposito comune è a disposizione degli inquilini.
Un servizio con WC e lavello per praticità di chi si intrattiene in
giardino.
Accesso diretto dal piano cantine al giardino.
Locali tecnici.
Accesso e posteggi
Da via Campione, tramite rampa, accesso ai posteggi situati
all’altezza del primo piano.
Tutti i posteggi sono coperti e per ogni appartamento ne sono previsti
due.
Due ulteriori posteggi sono riservati per eventuali ospiti.
Dai posteggi, il giardino è accessibile direttamente senza passare dalla
casa.
Giardino
Grande giardino comune a prato e pregiati arbusti direttamente al
lago.
Piscina esterna comune per uso estivo di 5 X 14 m.
Accesso diretto al lago di lugano.
Descrizione tecnica
Piastrelle in zona atrio, corridoi, soggiorno, cucina e balcone.
Parquet nei locali notturni.
Via cavo e prese del telefono.
Satellite centrale.
Balcone con
tenda a motore ed anemometro.
Tapparelle a lamelle d’alta qualità.
Ascensore per 6 persone.
Riscaldamento ad olio con contatori di
calore individuali.
Serpentine negli appartamenti.
Isolazioni secondo le
più severe norme attuali.
Piani dettagliati
Piano terra - appartamento 1

Piano terra - appartamento 2

Primo piano - appartamento 3

Primo piano - appartamento 4

Secondo piano - appartamento 5

Secondo piano - appartamento 6

Accesso

Posteggi
